Домашний кинотеатр должен обеспечивать удовольствие от просмотра кинофильма не меньшее, чем поход в кинозал с большим экраном, оборудованный по последнему слову техники. Из приятных бонусов — никуда не нужно тащиться и попкорн всегда под рукой. Коробка с набором колонок, пусть и неплохих, и встроенным в них усилителем не может считаться домашним кинотеатром, даже если эти слова написаны на упаковке большими буквами.

Чтобы превратиться из комнаты, в которой установлен хороший «зомби-ящик» или даже проектор, в полноценный кинозал, нужно две вещи.
Во-первых, у хозяев должно быть время для просмотра кинокартин и прослушивания музыки (с этим зачастую сложнее всего).
Во-вторых, особенности помещения, возможности оборудования и его расстановка должны обеспечивать полный эффект присутствия.
Если уж вы смотрите, к примеру, «Непрощённый» вы ощутите свист бандитской пули, пролетевшей в сантиметре от вашего уха и отчётливо различите на экране подковы на копытах лошади Клинта Иствуда, скачущего на линии горизонта. Новейшие технологии объёмного воспроизведения изображения и звука должны целиком погрузить вас и вашу семью в волшебную, драматическую, весёлую или очень страшную кинореальность. Впрочем, посмотреть новости на большом экране тоже можно, они бывают не менее драматичными.
Помещение
Какими бы высокими характеристиками не обладало видео- и звуковоспроизводящее оборудование, добиться хорошего звучания и комфортного просмотра в неподготовленном помещении не удастся. Зритель должен отчётливо видеть изображение, не напрягая глаз, и слышать только тот звук, который воспроизводит акустическая система. Всяческие блики, отсветы, отражения звука, дребезжание сведёт на нет достоинства хорошего оборудования.
Строительные конструкции здания должны быть массивны. Каменные (кирпич, тяжёлые стеновые блоки) стены и железобетонные перекрытия — лучший вариант. Пытаться добиться хорошего звучания низких частот в каркасном доме бесполезно, а в каменном при наличии деревянных перекрытий — сложно.
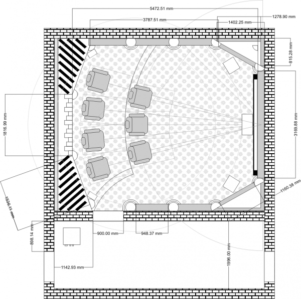
Размеры и конфигурация. Если звуковые волны проходят одинаковый по длине путь, отражаясь от поверхностей, они будут одновременно накладываться друг на друга, Самое невнятное звучание мы получим, если поместим источник звука в пространство с одинаковыми линейными размерами. Для четырёхгранника это куб.
В квадратной в плане комнате звук тоже будет искажён. Не получится добиться чистого звучания и в помещении, ширина, длина и высота которого имеют кратные размеры. К примеру, пропорции 1 : 3,2 : 5,3 предпочтительней, чем 1 : 3 : 5. Акустики утверждают, что резонанс будет наименьшим при оптимальном соотношение габаритов ширина/длина — 1:1,6 - 1,65.
Наименьшие звуковые искажения возникают в помещении с непараллельными поверхностями. То есть, в идеальном случае кинозал должен иметь в плане форму не прямоугольника, а трапеции, а потолок либо пол должны быть наклонными.
И чем больше кинотеатр, тем лучше. Не стоит оборудовать его в помещении, ширина которого меньше 4 метров. Габариты определяют между массивными конструкциями: перекрытиями и стенами. Гипсокартонные потолки и декоративные зашивки не принимают во внимание, низкочастотные колебания они практически не задерживают. Наличие в помещении колонн, балок, пилястр, ниш, многоуровневых потолков существенно на акустику не влияет.
Отделка, звукоизоляция и акустическая обработка. Отделка помещения должна быть выполнена так, чтобы зрители могли в полной мере воспринимать объёмную и чистую звуковую картину, соответствующую источнику. Многократные отражения, взаимные наложения и неравномерное распределение звуковых волн могут сильно исказить аудиосоставляющую домашнего кинотеатра. Соответственно, отделочные материалы и мебель должны поглощать звук. Предпочтительны пористые, мягкие материалы с несплошной структурой.
Существует ряд отделочных акустических покрытий для стен и потолков на основе минеральной и стеклянной ваты, целлюлозы, акустического пенолита. Они обладают малым весом, легко обрабатываются и монтируются, имеют эстетичный отделочный слой.
В качестве потолка можно использовать и офисные шумопоглощающие кассетные потолочные конструкции, только каркас должен быть собран прочно и не дребезжать. Очень хороши специальные акустические натяжные потолки с микроперфорацией.
Лучшее покрытие для пола — ковровое. Неплохой вариант — натуральная пробка, панели с красивой текстурой есть для стен и полов.
Окна в момент звуковоспроизведения лучше закрывать двойными тяжёлыми шторами. Вообще, плотные свободно висящие ткани хорошо гасят звуковые волны, ими можно декорировать все стены. Правда, шторы не в состоянии убрать резонанс от стекла на 100%, недаром домашний кинотеатр нередко обустраивают в цокольном этаже.
Мягкая мебель не искажает звуковую картину, а вот корпусной следует избегать. Ставить высококлассную акустику в гостиную, одна стена которой занята мебельным гарнитуром, бессмысленно.
Дверь в кинозал должна быть массивной, плотно закрываться, желательно иметь порог, коробку с притвором и уплотнитель.
Оптимальные условия для просмотра изображения. Первое условие — отсутствие бликов. В поле зрения не должно быть блестящих предметов. Желательно, чтобы цвет стен и потолков не был слишком светлым, чем темнее, тем лучше. Краску и обои следует выбрать матовые.
Очень важно правильно выставить свет. В публичных кинотеатрах мы смотрим на экран в полной темноте, но дома это может быть не очень удобно. Рекомендуется сделать в комнате кроме основного, мягкое фоновое освещение, которое может сопровождать просмотр фильма. Оно должно быть равномерным, источники света скрыты. Обязательно следует предусмотреть возможность регулирования яркости посредством диммера.
Оборудование
Источник сигнала. Пока что самое популярное воспроизводящее устройство — DVD плеер. Но в новых фильмах и современных наборах устройств его неотвратимо вытесняют Blu-Ray проигрыватели, ведь объём Blu-Ray диска — 50 Гб против 8 Гб у DVD. БольшАя ёмкость и высокая скорость чтения позволяет без труда записывать и воспроизводить видео с разрешением 1080p и качественный звук в форматах DTS-HD Master Audio и Dolby True HD.
С этой же задачей успешно справляется и персональный компьютер либо его специализированная версия — медиастанция. К компьютеру могут быть подключены внешние запоминающие устройства, которые будут хранить практически неограниченную аудио и видеобиблиотеку.
Прогресс в области цифрового телевещания также позволяет использовать сигнал в формате HDTV с кабельных и спутниковых сетей в качестве источника для качественного домашнего кинотеатра.
Оборудование для отображения видео. Максимального эффекта при просмотре кинофильма можно достичь, только используя Full HD проектор и экран под стать ему. Всё-таки, с традиционным большим экраном телевизоры, даже самые лучшие, сравниться не могут. Особенно после того, как проекторы освоили полноценную технологию 3D.
Стоившие раньше больших денег, сегодня они значительно подешевели и конкурируют по стоимости с телевизорами. В маленькой комнате такое оборудование не поставишь. Чтобы изображение было большим, проектор устанавливают под потолком на расстоянии 3,5-6 метров от экрана.
У мультимедиа проекторов есть два небольших недостатка: периодически приходится менять недешёвую лампу; яркость и контраст хороши только в затемнённом помещении. Ещё один повод оборудовать кинозал в подвале.
Плазменные и жидкокристаллические телевизоры дают картинку не такую эффектную, но чёткую, их хорошо видно и в ярко освещённой комнате. На сегодняшний день «плазма» и LCD практически сравнялись как по качеству воспроизведения, так и по цене.
Ресивер домашнего кинотеатра довольно сложен: он должен коммутировать сигналы, изменять их (эквалайзер), усиливать и распределять на звуковые колонки. Хороший ресивер может осуществлять реверс каждого из 5-8 каналов, регулировать реверберацию. Существует Hi-End оборудование, где вместо единого ресивера используются отдельные процессор-предусилитель и многоканальный усилитель мощности.
Акустика. Сегодня распространены стандарты 5.1, 6.1, 7.1 и 8.1. Первая цифра — число каналов и колонок, вторая говорит о наличии сабвуфера. Уже доступны, хотя пока дороги и редки, системы 12.1 и записи в этом формате.
Главную роль играют фронтальные боковые и центральная колонка. Они воспроизводят основную часть фонограммы, обеспечивают плавное «перетекание» звука.
Тыловые и боковые придают звучанию объёмность, сабфуфер воспроизводит низкие частоты. Динамики следует располагать примерно на уровне головы сидящего человека и направлять на зрительские места.
Для сабвуфера местоположение не важно, его можно поставить на пол в любом углу.
Устройства управления. Это пульты дистанционного управления, раздельные либо один общий, программируемый и настраиваемый.
Оборудование для электропитания также важно. Для того, чтобы исключить помехи и защитить технику от перегрузок в сети, используют стабилизаторы напряжения, сетевые фильтры. Соединительные и акустические кабеля имеют не меньшее значение. Невозможно добиться от высококлассной аппаратуры достойного звучания, используя дешёвый кабель. В домашнем кинотеатре используются несколько десятков типов и стандартов разъёмов и кабелей, вплоть до волоконно-оптических.
После установки оборудования в готовом помещении проводят тонкую настройку с целью добиться наилучшей звуковой картины. Настраивают эквалайзер для отдельных каналов, при необходимости проводят дополнительную звукоизоляцию. Для серьёзного кинотеатра в полной мере с задачей способен справиться только подготовленный звукотехник.
Интеграция домашнего кинотеатра в "умный дом"
Домашний кинотеатр уже сам по себе является многокомпонентной «умной» системой. Будучи включённым в мультирум и общую систему «умного дома», он приобретает дополнительные возможности. Увеличивается количество доступных источников сигнала: любой компьютер, подключенный к сети, в том числе через Wi-Fi; планшет, смартфон или iPod.
В свою очередь, цифровая медиабиблиотека будет доступна во всех помещениях квартиры или загородного дома, создавая систему мультирум.
Во время просмотра фильма можно прерваться и посмотреть картинку с домофона или любой камеры видеонаблюдения, проверить электронную почту прямо с экрана, воспользоваться органайзером.
С помощью универсальной панели управления, ноутбука или смартфона можно, кроме мультимедии, управлять всеми системами здания: задавать режим освещения, регулировать температуру с помощью систем отопления или кондиционирования, открывать или закрывать ворота, контролировать систему охраны, дать команду сауне прогреться, а мультиварке сварить вкусную кашку.
Стоимость полнофункционального качественного домашнего кинотеатра может составить не один десяток тысяч долларов. Полноценный домашний кинотеатр не каждый в состоянии себе позволить. Однако и бюджетную систему 5.1, применив некоторые из рекомендаций, можно заставить неплохо звучать в обычной гостиной.
Подключив к компьютеру и упрощённому варианту «умного дома», получить многие возможности мультирума и управления освещением за разумные деньги.



















